id35068

Sběrný formulář ID 34044 na přidání se k zaplacení 1 inzerátu na realitních serverech cenou 20,- Kč pro zisk 7.500,- Kč jako realitní meziprovize za klienta, když vyjde.

Mám zájem vložit 20,- Kč na sdruženou střediskovou investici, do svěřesnkého fondu, abychom tak společně jako středisko získali z profesí realitní inzerce klienty a za ně realitní meziprovize

 

Systém funguje na principu, že se peníze 20,- Kč pošle panu Mgr. Machurovi.

Ten vezme peníze asi od 7 osob a za cca 140,- Kč objedná za ně inzerci na cca 1 týden, 7 dní u paní Slavíkové. Která inzeruje na Idnes a dalších realitních serverech. Přes jejich systém.

A o klienta se pak starají paní Marie2 Podoláková a pan Bc. Miroslav Soukup, finanční poradce.

Realitní provize bude vyplacena na Váš uvedený účet. Nebo do peněženky. Jak budete chtít.

POZEMEK SVOJETICE U ŘÍČAN

Kontakt na messenger správce: (podání  inzerátu a vyplacení realitních meziprovizí) – napište mu zprávu, že jste odeslali Objednávku. (Mgr. Roman Machura)

https://www.facebook.com/profile.php?id=100013656768600

 

video – na Svojetice

Název:  Byty a stavební pozemky Svojetice u Říčan

Popis:

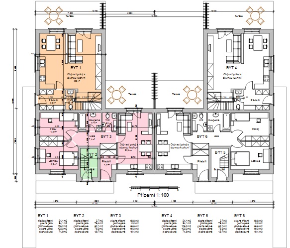
Svojetice. Projekt vždy 6 bytů na 2 stavebních parcelách. Zástavba vesnického typu. Byty 4+1, 3+1 a 3+1. A 4+1, 3+1 a 3+1. Vždy 6 bytů jako jedno zemědělské stavení.  Zde vidíte. Stavební pozemky od 793 m2 až 1.529 m2 Cena za pozemek jako pole a k tomu sítě a komunikace. Cena bytů 30% od 1,135.000,- Kč.  Na webových stránkách společnosti najdete více informací.

Vstup na pozemek z ulice v Jamkách, zde jsou jižní parcely. A také je zde ulice V břízkách. Kvůli orientaci na mapě. Vidíme zde paní Marii Frantovou. Zde vidíte úplně jasně, jak by se přijelo sem a zde by byla další komunikace,  mezi dalšími stavebními parcelami.

video:

Zde

https://www.youtube.com/watch?v=qLJruuM4Plk

 

video – cesta k pozemku  Svojetice

Název:  Pozemky Svojetice u Říčan – cesta k pozemku

Popis:

Svojetice. Zde vjíždíme do Svojetic. Chvíli pojedeme rovně. Pak bude po pravé ruce restaurace a pak hned odbočujeme do ulice Na skále. Projíždíme takovou myší dírou. Jsme na nějaké návsi. A si 1 minutu za návsí, restaurace po pravé straně a hned za ní odbočka do ulice Na skále. A pojedeme rovně, s kopce a dole budou ulice V Jamkách a V břízkách.

=========

https://www.youtube.com/watch?v=zkmDJeCUyMM

 


Nepřihlášený